CEVIZ Model Wooden House
Esse dolorum voluptatum ullam est sint nemo et est ipsa porro placeat quibusdam quia assumenda numquam molestias.

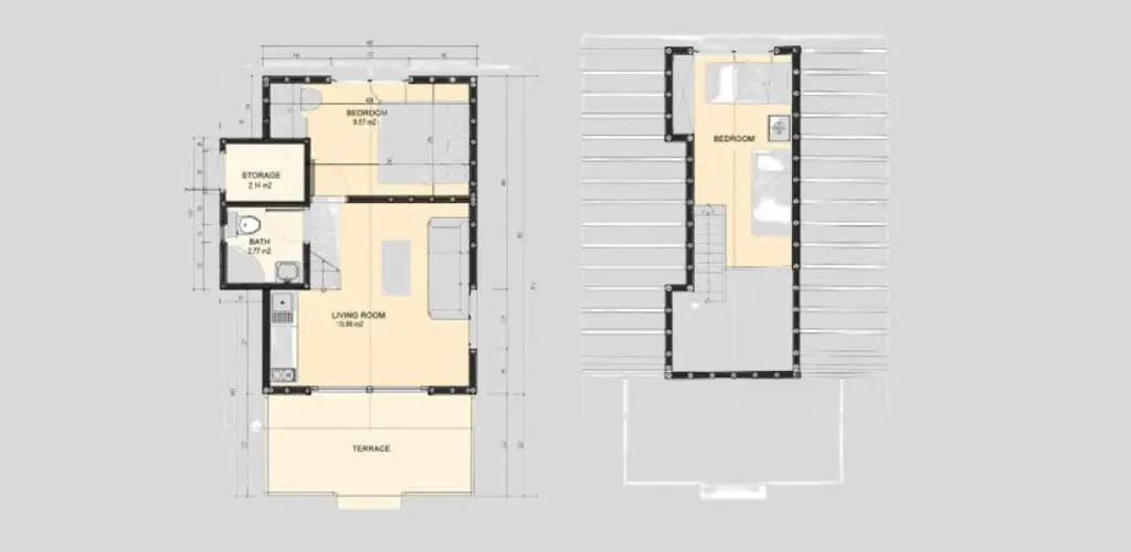
CEVIZ Model Prefabric Wooden House
The CEVIZ Model prefabricated wooden house is the largest wooden house. It is two-story. It is very comfortable and practical.
The ground floor has a living room with a kitchen, a bedroom, a bathroom, and a storage room. It is quite comfortable for a family of 4 to live in.
A very stylish staircase leads to the upper floor. On the upper floor, there is a very spacious and functional bedroom with two beds. As with other prefabricated wooden houses, there is a terrace at the front.
The total area, including the terrace is 60.66 m2.
Cross Closed Ares
50,23m2
Terrace Area
10,43m2
TOTAL Area
60,66m2
Technical Specifications
Structural System
Wood Timber
Foundation Type
Reinforced Platform or Wooden Pile
Exterior Cladding
Wooden Paneling or
Gypsum board coated with waterproof fiberglass.
Gypsum board coated with waterproof fiberglass.
Interior Cladding
Wooden Paneling or Gypsum board
Flooring
The spaces between the grilles are insulated and
covered with wooden planks.
covered with wooden planks.
Thermal Insulation Materials
Stone wool calculated according to Rd value.